Print Page     Save As PDF     Email PDF
Email PDF
* Enter your name

* Enter your email address

* Enter email addresses

Send a note with the email

153 Newtown Lane, East Hampton, NY 11937

32 Photos
 
$4,400,000 Sold Price
Sold on 2/27/2024
6 Beds
7.5 Baths
4500 SF
Built In 2022
 
Listing ID 902027
Property Type House
Township East Hampton
Hamlet Village of East Hampton
Total Tax $10,722
Tax ID 0301-001.000-0006-008.006
FEMA Flood Map fema.gov/portal
Year Built 2022
Associated Documents
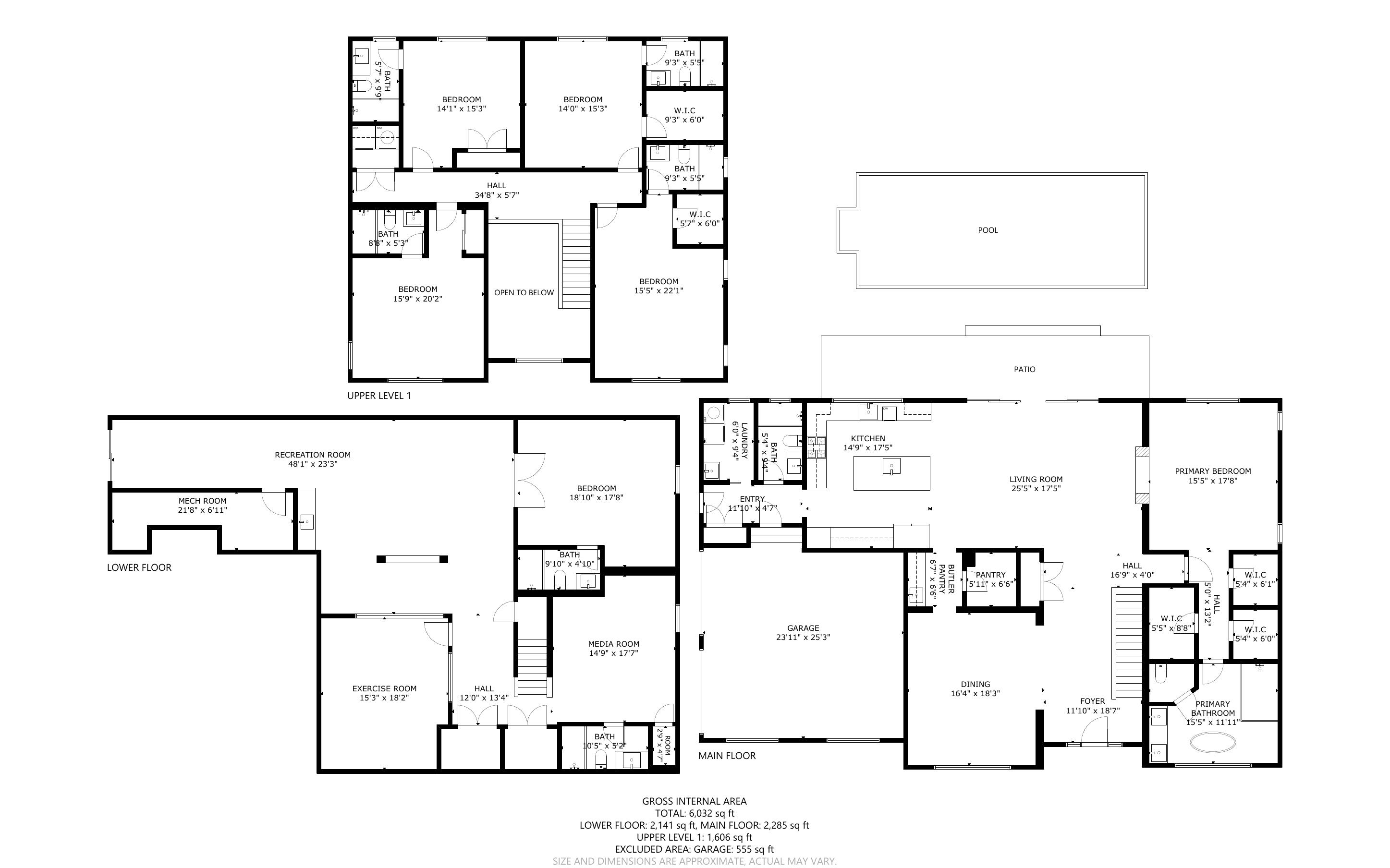
FLOORPLANFloorplan
SURVEYSurvey
 
Virtual Tour

New Construction, East Hampton Village

Don't miss out on this amazing opportunity to buy a newly constructed house in East Hampton Village. This home is expertly built with a perfect mix of modern style and timeless charm. As you step inside, you'll be greeted by natural light filling the open layout. The kitchen and great room with a cozy fireplace are bathed in warm, inviting light. You'll love the top-of-the-line Sub-Zero appliances, kitchen island, and easy access to the rear patio, wet bar, and dining room. The main level also offers an office/bedroom, powder room, and a convenient laundry room. The luxurious master suite features patio access, a captivating fireplace, dual walk-in closets, and a high-end master bath with a relaxing soaking tub. Upstairs, you'll find four more bedrooms, each with its own ensuite bathroom and walk-in closet. The second laundry room on this level makes life even easier. Plus, there's an attached garage and beautifully landscaped grounds that add to the appeal. The lower level is a blank canvas for you to personalize, with a media room and a gym ready for your personal touch. Situated on a large 0.86 acre lot, this house is conveniently located near the shopping and restaurant scene in East Hampton Village. Get ready to experience the best of Hamptons living, where luxury, elegance, and convenience come together.
Property Details
  • 6 Total Bedrooms
  • 7 Full Baths
  • 1 Half Bath
  • 4500 SF (AG)
  • 0.86 Acres
  • Built in 2022
  • 2 Stories
  • Available 5/15/2023
  • Traditional Style
  • Full Basement
  • Lower Level: Finished
  • 1 Lower Level Bedroom
  • 1 Lower Level Bathroom
Interior Features
  • Open Kitchen
  • Oven/Range
  • Refrigerator
  • Dishwasher
  • Microwave
  • Garbage Disposal
  • Washer
  • Dryer
  • Hardwood Flooring
  • Entry Foyer
  • Living Room
  • Dining Room
  • Den/Office
  • Primary Bedroom
  • en Suite Bathroom
  • Walk-in Closet
  • Media Room
  • Great Room
  • Laundry
  • Private Guestroom
  • First Floor Primary Bedroom
  • First Floor Bathroom
  • 1 Fireplace
  • Alarm System
  • Forced Air
  • Natural Gas Fuel
  • Natural Gas Avail
  • Central A/C
Exterior Features
  • Frame Construction
  • Cedar Shake Siding
  • Asphalt Shingles Roof
  • Attached Garage
  • 2 Garage Spaces
  • Municipal Water
  • Private Septic
  • Pool: In Ground, Gunite, Heated
  • Deck
  • Patio
  • Fence
  • Irrigation System
  • New Construction
  • Near Bus
  • Near Train
Taxes and Fees
  • $7,596 County Tax
  • $3,126 Village Tax
  • $10,722 Total Tax
Sale Information
  • Sold on 2/27/2024
  • Sold for $4,400,000
Previously Listed By
Compass
Office: 973-818-4392
Compass
Office: 631-905-9410
Listing data is deemed reliable but is NOT guaranteed accurate.
Contact Us
Who Would You Like to Contact Today?

I want to contact an agent about this property!

I wish to provide feedback about the website functionality

Contact Agent
Your Name:
Email:
Phone:
Message:
Security: What is 10 plus 5?