1 Abigail's Path, East Hampton, NY 11937

18 Photos
 
$1,500,000 Sold Price
Sold on 3/19/2026
4 Beds
3 Baths
2268 SF
Built In 1969
 
Listing ID 925710
Property Type Residential
Township East Hampton
Hamlet East Hampton
Area East Hampton Northwest
Total Tax $6,442
Tax ID 0300-055.000-0004-005.000
FEMA Flood Map fema.gov/portal
Year Built 1969
   
Associated Documents
FLOORPLANFloor Plan
SURVEYSurvey
 
Virtual Tour

East Hampton Retreat with Pool Near Beach

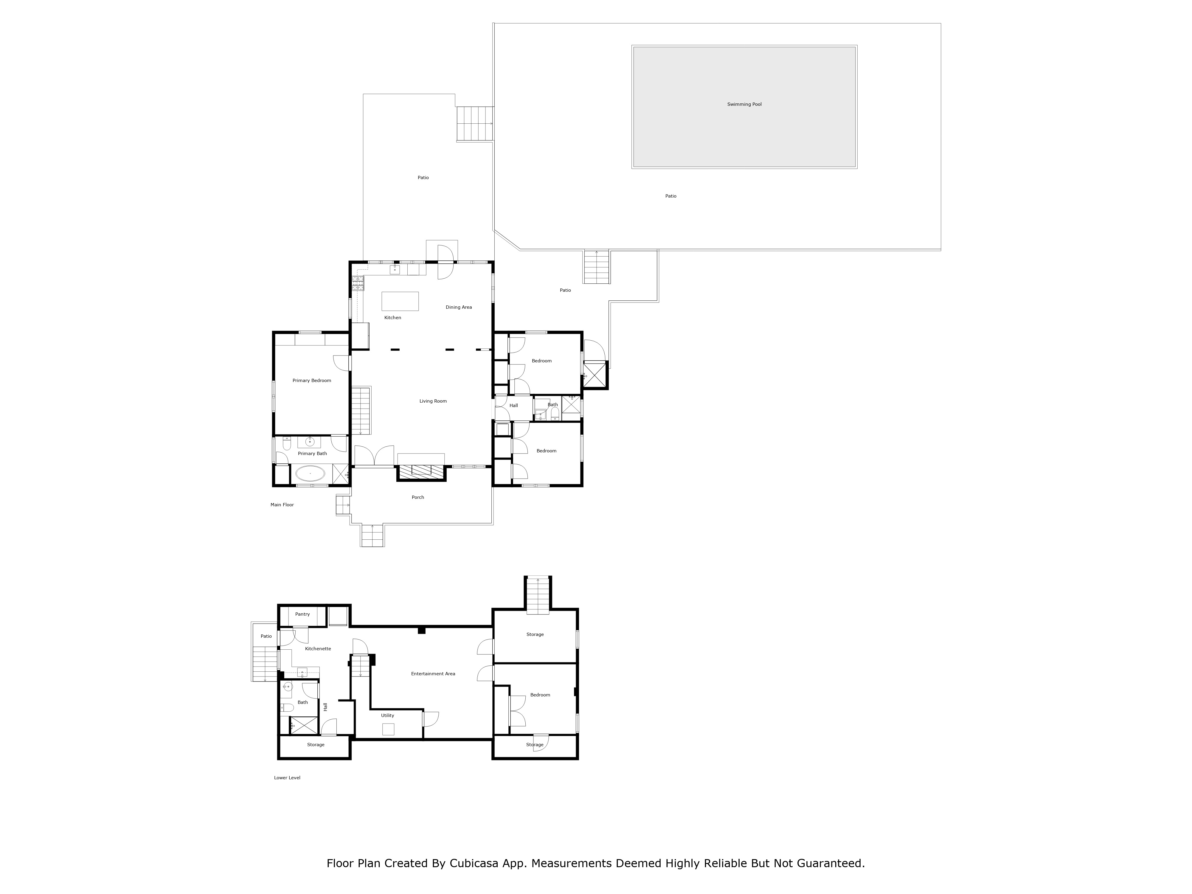
Located just minutes from the sparkling shores of Sammy's Beach, 1 Abigails Court offers the perfect balance of comfort, convenience, and coastal charm. Tucked away on a beautifully landscaped .62-acre lot, this 4-bedroom, 3-bath home features 2,268 square feet of well-designed living space, including a finished lower level with private entrance, bedroom, bathroom, and kitchenette, ideal for guests or extended family. The main level welcomes you with an open-concept kitchen, recently upgraded with a new refrigerator and dishwasher, flowing into the living room with a cozy wood-burning fireplace and views of the surrounding gardens. Thoughtfully maintained and move-in ready, the home includes numerous recent improvements: a new oil tank, on-demand hot water, water filtration system, irrigation, pool equipment and a nitrogen septic system, providing peace of mind for years to come. The well was replaced just six years ago. Outdoors, enjoy total privacy in your lush garden sanctuary, anchored by a stunning 20' x 40' saline pool with new cover, pipes and equipment, perfect for relaxing afternoons after a day at the beach. With its quiet cul-de-sac setting, proximity to the harbor and beach, and a host of upgrades, 1 Abigails Court is an exceptional East Hampton offering not to be missed.
Property Details
  • 4 Total Bedrooms
  • 3 Full Baths
  • 2268 SF (AG)
  • 0.63 Acres
  • Built in 1969
  • Available 9/04/2025
  • Partial Basement
  • Lower Level: Finished, Walk Out
  • 1 Lower Level Bedroom
  • 1 Lower Level Bathroom
  • Renovation: New oil tank, on-demand hot water, water filtration system, irrigation, pool equipment, and nitrogen septic system. The well was replaced six years ago.
Interior Features
  • Open Kitchen
  • Hardwood Flooring
  • Primary Bedroom
  • en Suite Bathroom
  • Great Room
  • First Floor Primary Bedroom
  • First Floor Bathroom
  • 1 Fireplace
  • Forced Air
  • Oil Fuel
  • Central A/C
Exterior Features
  • Frame Construction
  • Asphalt Shingles Roof
  • Private Well Water
  • Private Septic
  • Pool: In Ground, Vinyl, Salt Water
  • Deck
  • Patio
  • Fence
  • Outdoor Shower
  • Irrigation System
  • Cul de Sac
  • Driveway
  • Shed
Taxes and Fees
  • $6,442 Total Tax
Sale Information
  • Sold on 3/19/2026
  • Sold for $1,500,000
Previously Listed By
Compass
Office: 631-537-7700
Request More Information
Request Showing
Role Agent Buyer
Your Preferred Date & Time
Showing Type:
Listing data is deemed reliable but is NOT guaranteed accurate.
Contact Us
Who Would You Like to Contact Today?

I want to contact an agent about this property!

I wish to provide feedback about the website functionality

Contact Agent
Your Name:
Email:
Phone:
Message:
Security: What is 5 minus 1?