1215 MIDDLE LINE HWY, Sag Harbor, NY 11963

16 Photos
 
$3,899,999
Active for Sale
5 Beds
4.5 Baths
5000 SF
Built In 2026
 
Listing ID 930748
Property Type Residential
Township Southampton
Hamlet Sag Harbor
Tax ID 0903-007.000-0003-030.000
FEMA Flood Map fema.gov/portal
Year Built 2026
   
Virtual Tour

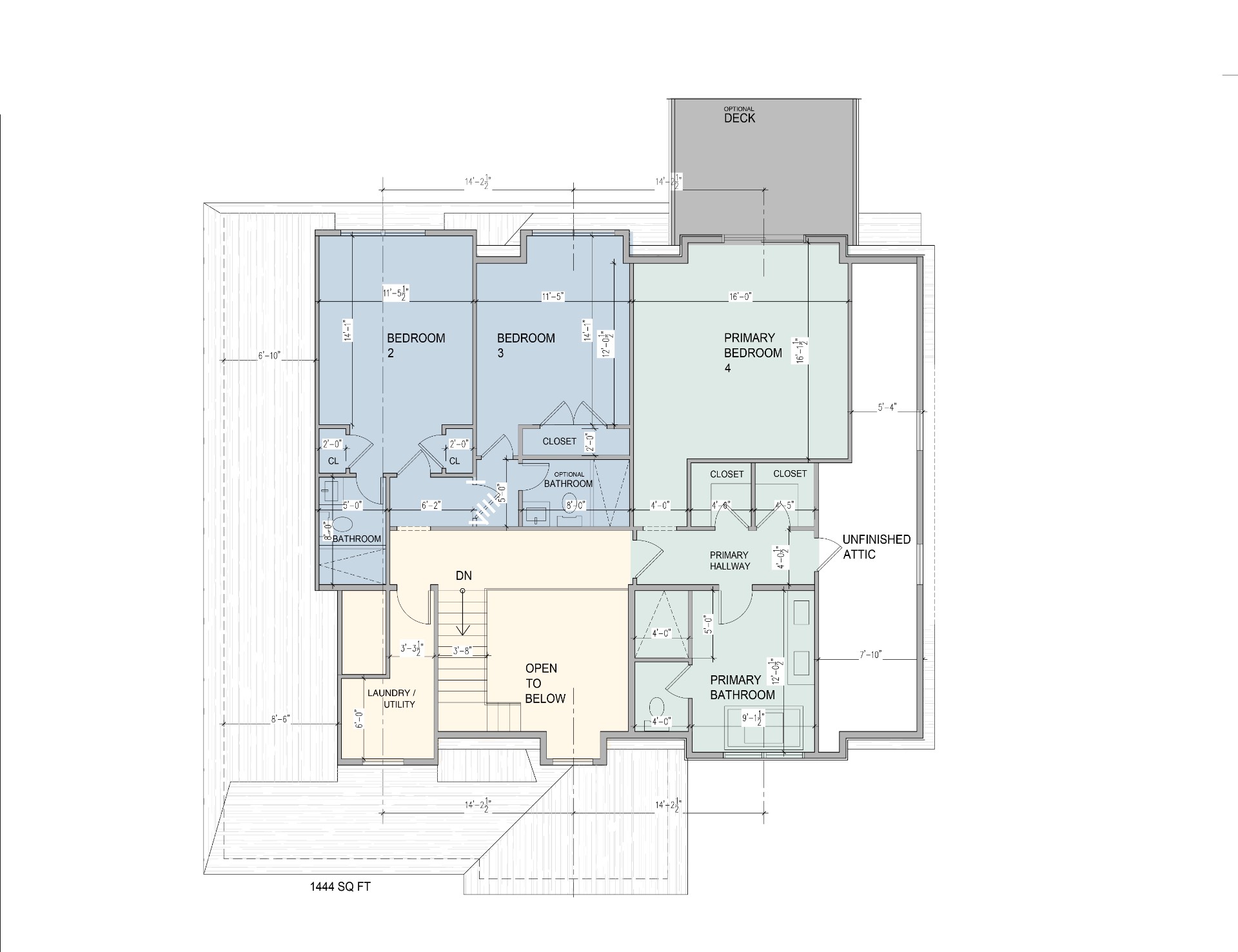
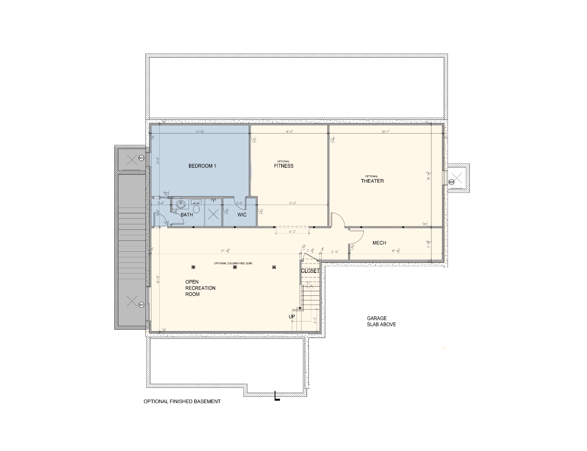
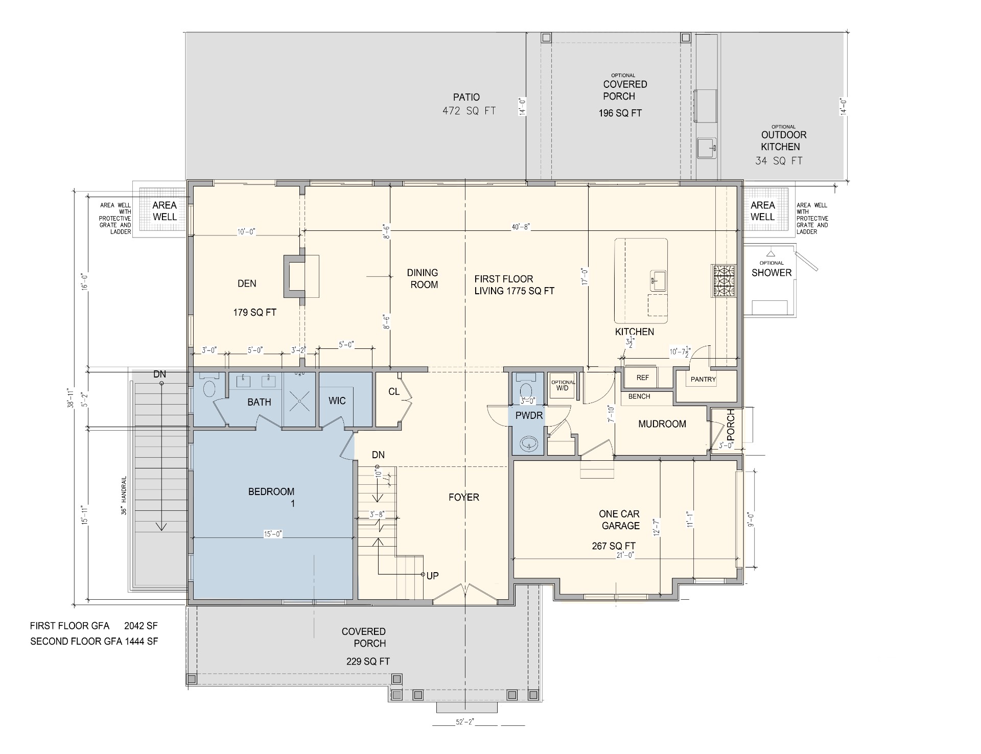
Pre-Construction Offering in Sag Harbor with Customizations

Now delivering in as little as 9 months, ARCH&Co is redefining the Hamptons' building experience. We believe your home should reflect your unique vision. Only this extraordinary pre-completion opportunity allows you to collaborate on a residence that is customized to your exact specifications. This 5,000 sq ft estate on just shy of a half-acre lot is priced at $3.9M, including the finished residence - not just the land. The home features 5 bedrooms, 4.5 bathrooms (option to expand), and a heated gunite 16 x 36 pool, all standard. ARCH&Co provides an exclusive array of over 50 options, to personalize the build with options such as additional bedrooms, bathrooms, gym, home theater, sauna, steam room, outdoor kitchens, fireplaces, and more. Inside, you are invited to work alongside the renowned Fiorello Design to select premium tiles, flooring, cabinetry, countertops, and paint colors, - all included within the standard pricing. This is a rare opportunity to create a fully customized home, without the complexity of a traditional custom build, that only ARCH&Co can offer.
Property Details
  • 5 Total Bedrooms
  • 4 Full Baths
  • 1 Half Bath
  • 5000 SF (AG)
  • 0.43 Acres
  • Built in 2026
  • Full Basement
Interior Features
  • Open Kitchen
  • Entry Foyer
  • Living Room
  • Family Room
  • Primary Bedroom
  • en Suite Bathroom
  • Walk-in Closet
  • Kitchen
  • Private Guestroom
  • First Floor Primary Bedroom
  • First Floor Bathroom
Exterior Features
  • Municipal Water
  • Private Septic
Listed By
Compass
Office: 631-259-9993
Request More Information
Request Showing
Role Agent Buyer
Your Preferred Date & Time
Showing Type:
Listing data is deemed reliable but is NOT guaranteed accurate.
 
Contact Us
Who Would You Like to Contact Today?

I want to contact an agent about this property!

I wish to provide feedback about the website functionality

Contact Agent
Your Name:
Email:
Phone:
Message:
Security: What is 5 plus 1?